Квартира в ЖК "Московские Водники"

Параметры проекта

  • Адрес: г. Долгопрудный, Московская область, дом 58, корпус 1
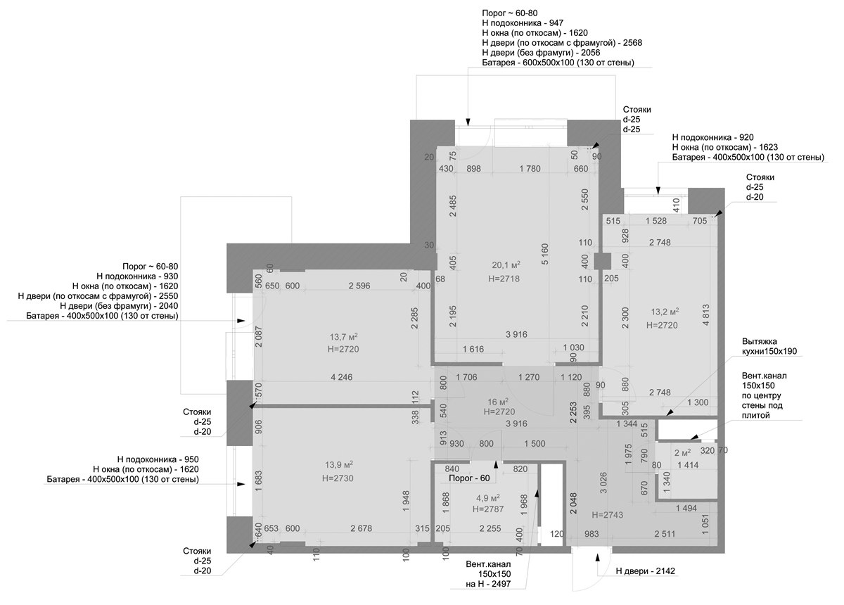
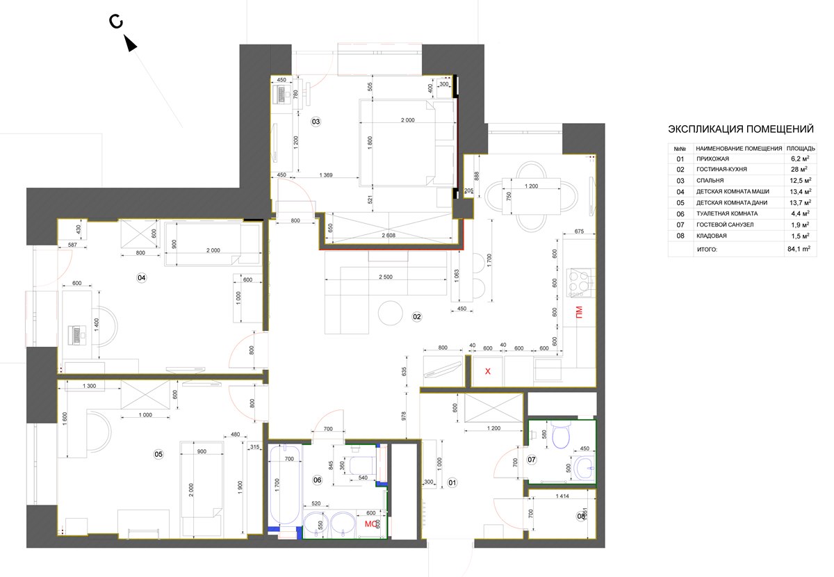
  • Площадь: 84 кв.м.
  • Дата: 2016
  • Статус: Реализован частично

     

    Стиль: Скандинавский / Эклектика

    Дизайн проект трехкомнатной квартиры 84 кв.м. выполнен в объеме "Стандартный дизайн-проект". Заказчики сразу определились и решили заказать дизайн интерьера в скандинавском стиле, поэтому поисков по стилевому направлению не было.
    Проект разработан для молодой семейной пары с двумя детьми. Запланировано две детские, спальня и объединенная зона гостиной и кухни. Два санузла и небольшая кладовая-гардеробная. Изначально заказчики сомневались - стоит ли менять существующую планировку квартиры, но увидев предложенный вариант перепланировки, сразу согласились. В результате в квартире планируется светлое просторное пространство гостиной-кухни, где сможет собираться вся семья и многочисленные гости. Рабочая площадь квартиры увеличилась.

СОВРЕМЕННЫЕ и СТИЛЬНЫЕ ИНТЕРЬЕРЫ

БЕЗ ЛИШНИХ ТРАТ!