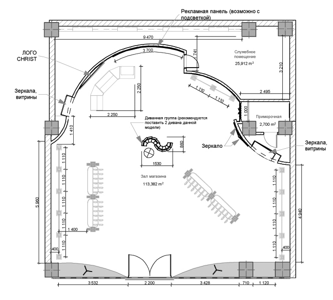
Магазин верхней одежды из кожи и замши CHRIST (Германия)

Параметры проекта

  • Адрес: г. Москва, ТЦ «Ереван Плаза»
  • Площадь: 150 кв.м.
  • Дата: 2007
  • Статус: Реализован

Отзывы

Михаил Урсуляк

С Натальей мы сотрудничали долго и весьма плодотворно. Все проекты выполнялись точно в срок и на высоком профессиональном уровне. У наших подрядчиков на объектах вопросов по проектам практически не возникало. Поддерживая уже устоявшийся фирменный стиль и используя существующее торговое оборудование, она умудрялась в каждый очередной проект привносить что-то новое, и наши магазины всегда привлекали внимание покупателей. И в бюджет всегда укладывались. Было приятно работать вместе и при возникновении такой необходимости, буду обращаться снова

- Михаил Урсуляк
Директор компании «CHRIST» (2003-2012 г.) Салоны одежды из кожи и замши / Германия

СОВРЕМЕННЫЕ и СТИЛЬНЫЕ ИНТЕРЬЕРЫ

БЕЗ ЛИШНИХ ТРАТ!